Concretetiseren & Uitvoeren

De buitendienstlocatie van gemeente Súdwest-Fryslân in Bolsward krijgt een make over. De
huidige locaties van de gemeente zijn onder andere Bolsward, Sneek en Heeg. Deze locaties zijn
verouderd en zijn aan vernieuwing toe. De buitendienstlocatie in Bolsward wordt de duurzame
hoofdvestiging voor alle activiteiten van de gemeente in Súdwest-Fryslân. Bouwgroep Dijkstra
Draisma (in het vervolg BGDD) is voor dit project uitgekozen om deze locatie volledig op te
knappen. Momenteel zijn er grote ontwikkelingen in keuzes en ontwerpen voor het terrein. BGDD
heeft studenten van NHL Stenden Leeuwaarden om hulp gevraagd bij dit project. De voorlopige
tekeningen van het project liggen al op tafel, deze zijn gemaakt door Van Pelt Architecten. De
studenten stappen vanaf hier in het project om o.a. bouwmaterialen en -technieken te
onderzoeken om tot een mooie uitwerking te komen.

 

Het doel is om de ambities van de architect waar te maken, hierbij willen wij voldoende aan de
kernwoorden van het project: grutsk, grien en noflik, CO2 neutraal, biobased en circulair. Bij het
project komen veel verschillende beroepen, werkzaamheden bij elkaar. Hierbij heeft iedereen
zijn eigen eisen en wensen. De opdrachtgever heeft ook bepaalde eisen en wensen die verwerkt
moeten worden, hierbij staat duurzaamheid hoog op het lijstje. Hierbij moeten materialen
gekozen worden en passende constructie. Het ontwerp moet ook voldoen aan bepaalde wetten,
regels en randvoorwaarden vanuit de BBL (Besluit Bouwwerken Leefomgeving). Uiteindelijk
moeten alle keuzes worden vertaald naar een bestek en de hierbij bestektekeningen. Het bestek
moet ook binnen de eisen en wensen van de opdrachtgever passen.


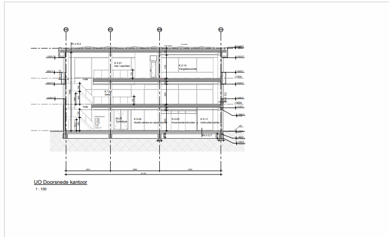
Bouwtechniesche analyse

Voor deze opdracht hebben we de hoofddraagconstructie van het Voorlopig Ontwerp (VO) geanalyseerd. Aan de hand van gevelaanzichten, plattegronden, doorsnedes en 3D-beelden hebben we de krachten in het gebouw van boven naar beneden gevolgd en bepaald hoe kolommen, liggers, vloeren en vides bijdragen aan de constructie.

Mijn specifieke bijdrage was het onderzoeken van de vloerconstructie. Ik heb hierbij gekeken naar overspanningen, ruimtegebruik en aspecten zoals duurzaamheid, flexibiliteit en brandveiligheid.


Bestek


Werktekeingen


MJOP

Een MJOP biedt een overzicht van de onderhoudswerkzaamheden, planning en kosten voor een gebouw over een langere periode. Het plan helpt eigenaren en beheerders inzicht te krijgen in toekomstige onderhoudskosten en hierop financieel voorbereid te zijn.

Tijdens deze opdracht hebben we samen met een onderhoudsexpert het schoolgebouw geïnspecteerd. Met een inventarisatielijst hebben we onderhoudsbehoeften in kaart gebracht en deze verwerkt in een onderhoudsbegroting. Mijn taak was het analyseren van de daken: ik onderzocht de benodigde onderhoudswerkzaamheden, en vergeleek alternatieve materialen op basis van kosten en duurzaamheid.

Maak jouw eigen website met JouwWeb