Tiny House
Ontwerpen
Bouwfysica & installatie
Voor het bouwfysisch deel van het Tiny House was hetbedoeling dat we naar de materialen die we gaan gebruiken kijken. En RC-waarden berekenen en kijken of het voldoet. Hoe hou ik de woning nou warm in de winter en koel in de zomer. Wat voor installaties heb ik hiervoor nodig.
Constructie
Voor constructie was het belangrijk om te kijken naar de stabiliteit in de woning. Hoe wordt de overspaning van de vloer het beste gelegd? Moet je aanpassingen doen om de stabilteid te verbeteren?
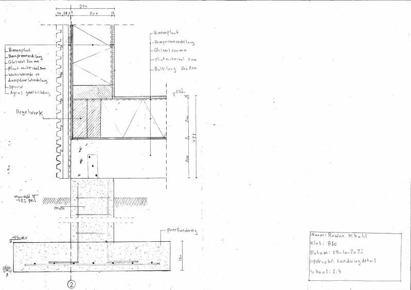
Detail
Voor de detail tekening heb ik naar de materialen opbouw gekeken. Hoe wordt de materiaen het beste aan elkaar geleg? Hoe wort het water en luchtdicht? en hoe wordt de gevelbekleding bevestigd.
Voorlopig ontwerp
Om de opdracht gever een beeld te geven bij hoe de woning eruit komt te zien moest het voorlopigontwerp in Revit gemaakt worden. Hiermee krijgen we 2D plattegronden, gevelaanzichten, doorsnedes en 3D model.
Maak jouw eigen website met JouwWeb