Villa Project 

Specificeren en realiseren

Constructie

Voor de constructie moest het gewicht van de woning berekend. Om een funderingpalen berekening te kunnen maken met aantal benodigede palen.


Aanbesteding

Voor deze opdracht heb ik verschilende aanbesteding soorten onderzocht. En uiteindelijk heb ik keuze hieruit gemaakt.


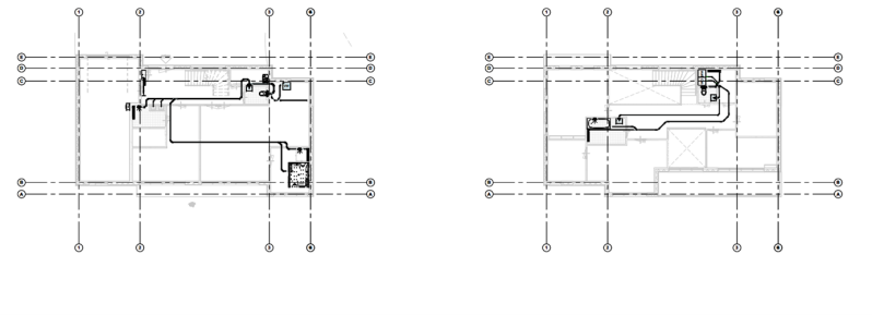
Riolering

Voor deze opdracht was het van belang dat we gaan kijken naar de installaties in de woning. Zo moest de riolering 3D worden ingetekend, zodat het duidelijk komt hoe alles op elkaar wordt aansluiten. 


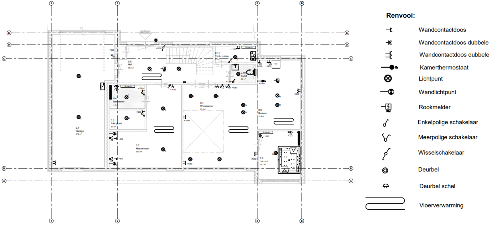
Elektra installatie

Voor deze opdracht moesten de elektrische installaties worden geplaatst in de plattegrond. Deze installaties moesten worden gekoppeld aan de bijbehoren schakelaar. 

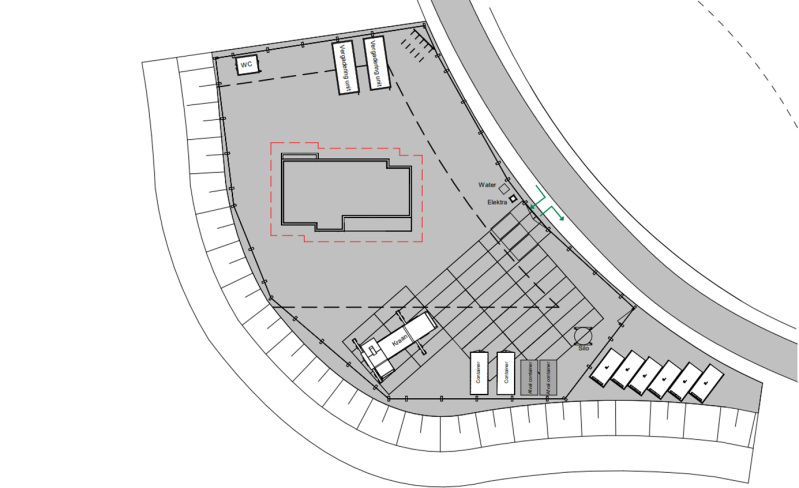
Bouwplaatsinrichting

Voor de bouwplaatsinrichting moest onderzocht worden wat er tijdens het bouwen op de bouwplaats moet komen. Hiervoor moesten we twee bouwplaatsen bezoeken, om uiteindelijk een bouwplaatsinrichtingstekening van de villa te maken.


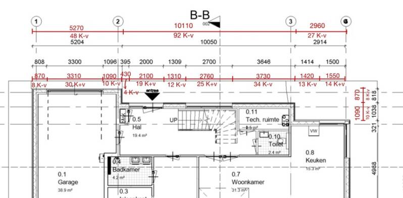
Koppenmaat

Door de gevel aan te passen op de afmetingen van de bakstenen zorgt dit voor de openingen voor een strakke uitstraling.


Werktekening

Deze periode moest ik ook een werktekening maken van de begane grond. Ik heb goed gekeken naar de verschillen tussen definitief ontwerp en werktekening, om goed te kunnen verwerken.


Kozijn detail

we moesten bij de kozijnstaat een drietal details maken. Deze details gingen over de aansluiting van het kozijn ten op zichtte van de wand. 

 

Maak jouw eigen website met JouwWeb