Villa Project 

Specificeren en ontwerpen

Omgevingsvergunning

Voordat er gebouwd kan worden is het van belang dat er een vergunning wordt aangevraagd. Pas als deze is goedgekeurd kunnen de verdere stappen worden ondernomen. 


Bouwfysica 

Bij de bouwfysica moeste naar de daglicht gekeken worden. Hiervoor moest er een zonnestudie worden gedaan en voor één slaapkamer moest er een daglichtberekening gedaan worden. Om een beeld te krijgen van de invloed van het type glas op de daglichttoetreding.


Constructie

Voor de constructie opdracht moest er naar verschillende punten worden gekeken. Ten eerste moest er worden gerekend aan de houten balklaag dakconstructie om te kijken of de balken zouden voldoen. 


Bouwbeurs

Voor deze opdracht moesten we naar de bouwbeurs in Utrecht, hiervoor hebben we onderzoek gedaan naar een gevelmateriaal voor de villa die we ontworpen hebben. De gevelmaterialen die in de villa zitten zijn cementvezelplaten en aluminiumplaten. Cementvezel komt het meeste voor in de villa en deze heb ik dus onderzocht op de bouwbeurs.


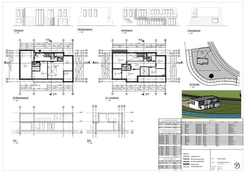
Definitief ontwerp

Voor deze opdrachtmoesten we de tekeningen van het voorlopig ontwerp verder werden uitgewerkt naar het definitief ontwerp.

Maak jouw eigen website met JouwWeb